139,230,000원


4평 규모의 포치 공간이 핵심 포인트인 단층 주택을 소개해 드립니다.
단순하고 정갈한 외관과 더불어,
최소한의 공간을 실속 있게 활용할 수 있도록
공간의 성격을 명확히 나눠 설계한 구조가 특징입니다.


강화 초지리 모델은
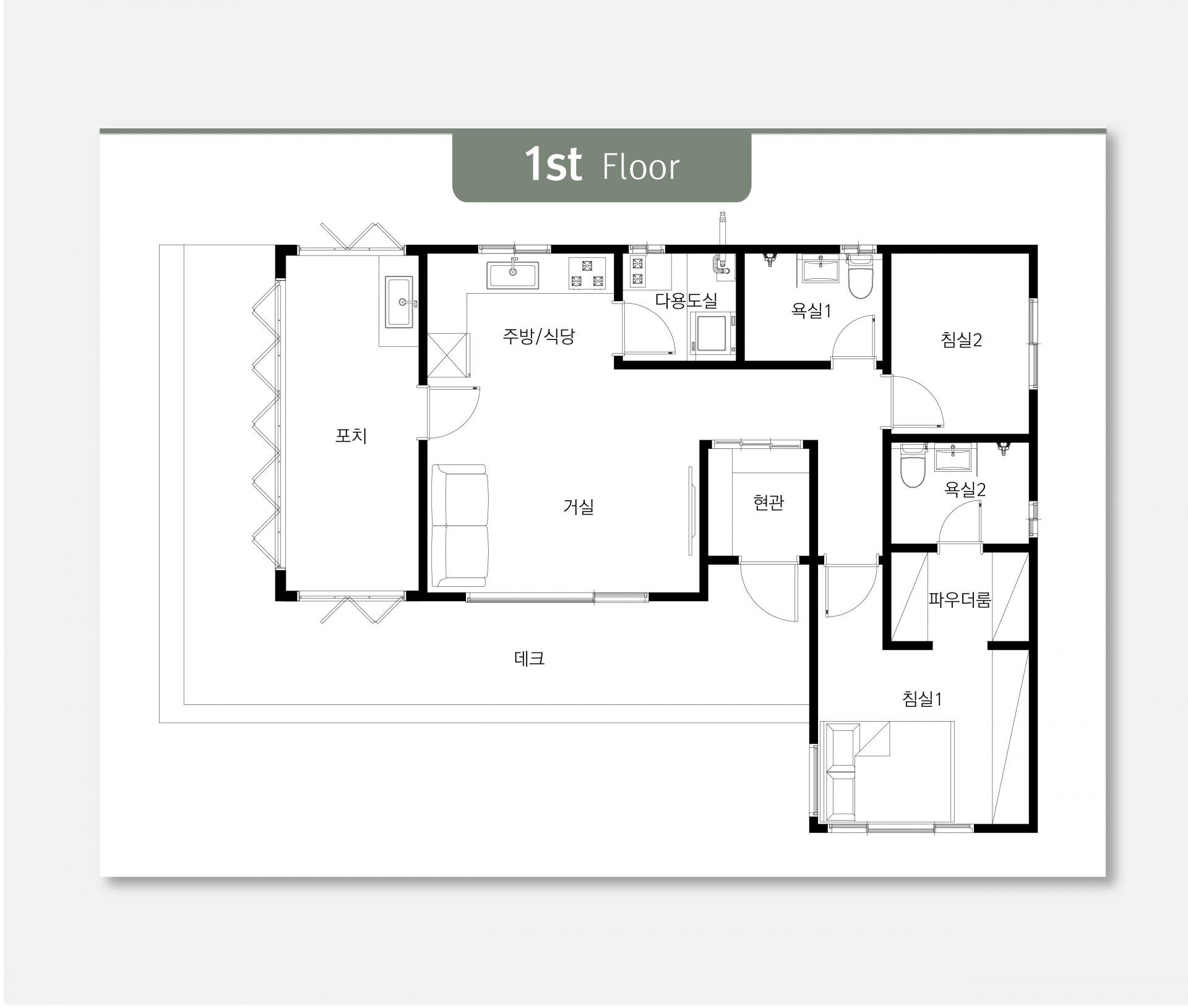
25.47평 규모의 경량 목구조 단층 주택입니다.
방 2개, 욕실 2개, 거실과 주방,
그리고 다용도실과 파우더 룸, 포치 공간까지 갖춰
실용적인 구조로 설계되었습니다.
집의 중심에는 거실 공간과 주방이 하나의 공간에 배치되어 있고,
집의 왼쪽으로 포치와 다용도실이 연결된 외부 공용 휴식 공간을,
오른쪽으로는 침실 2개와 욕실, 파우더룸이 모여 있는 '개인 생활 공간'이 분리된 구조입니다.
거실을 중심으로 기능에 따라 좌우가 자연스럽게 나뉜 설계로,
생활 동선이 명확하고 공간 간섭 없도록 구성되었습니다.

강화 초지리 모델의 외관 모습을 보면,
25평대 단층 주택이지만
답답한 느낌 없이 "넓고 안정적인 인상"을 주는 것이 가장 큰 특징입니다.
디자인적으로는 수평과 수직 라인을 간결하게 정리했고,
외장재는 '세라믹 사이딩을 적용해',
모노톤 컬러 조합을 통해
심플하면서도 세련된 인상을 전달할 수 있도록 설계했습니다.
또한 지붕은 '리얼징크를 사용하여',
전체적인 형태와 조화를 이루면서도
고급스러운 마감 느낌을 줄 수 있도록 계획되었습니다.
강화 초지리 모델의 포치 공간은
약 4평 규모로 여유 있게 설계되었으며,
폴딩도어를 적용해 활용도를 더욱 높였습니다.
무엇보다 바닥에는 전기판넬을 시공하고 강화마루로 마감하여,
겨울철에도 바닥이 따뜻하고 맨발로도 편하게 사용할 수 있는 공간으로 계획되었습니다.
날씨가 좋은 날에는 폴딩도어를 열어
거실과 데크, 마당까지 자연스럽게 이어지는 개방형 외부 공간으로,
비나 눈이 오는 날에는 실내처럼 활용할 수 있는 쉼터로 사용할 수 있어
사계절 내내 실용적인 공간으로 설계되었습니다.
데크는 약 10평 규모의 석재 데크로 계획되었으며,
포치와 거실에서 자연스럽게 이어지고
마당과도 연결되는 외부 활동 공간의 중심부로 구성되었습니다.
습기와 마모에 강한 석재 데크는
내구성이 뛰어나고 오랜 시간 깔끔하게 사용할 수 있어,
실외 공간의 품질을 높여주는 마감재로 선택되었습니다.
강화 초지리 모델, 건축비는 얼마나 들까요?
많은 분들이 가장 궁금해하시는 부분이 바로 건축비일 텐데요.
강화 초지리 모델은 평당 500만 원 프로모션 기준으로
실속 있게 구성되어 있습니다.
기본적인 건축 면적은 약 25평(84.07㎡) 으로,
기본 공사비는 1평당 500만원 기준,
약 10,500만 원이 책정됩니다.
여기에 자재와 외장, 포치 등 다양한 업그레이드 항목이 추가되는데요,
각 항목 별 예상 비용은 아래와 같습니다:
⸻⸻⸻⸻⸻⸻⸻⸻⸻⸻⸻⸻⸻⸻
✅ 선택 업그레이드 항목
• 지붕재 업그레이드
아스팔트슁글에서 리얼징크로 업그레이드
→ 평당 20만 원 × 25평 = 500만 원
• 외장재 업그레이드
메탈사이딩에서 세라믹사이딩으로 업그레이드
→ 평당 35만원 × 21평 = 735만 원
• 포치 (4평 기준)
포치 시공 : 평당 150만 원 × 4평 = 600만 원
전기판넬 + 강화마루 : 평당 25만 원 × 4평 = 100만 원
• 데크 (10평 기준)
석재 데크 시공 : 평당 90만 원 × 10평 = 900만 원
• 폴딩도어 (14짝 기준)
일반 폴딩도어 시공 : 짝당 42만 원 × 14짝 = 588만 원
⸻⸻⸻⸻⸻⸻⸻⸻⸻⸻⸻⸻⸻⸻
✅ 총 예상 건축비
139,230,000원 (VAT 별도)


25평대 단층 주택임에도 불구하고
넓고 개방감 있는 외관 설계와
포치와 데크를 중심으로 연결된 실속 있는 외부 공간,
그리고 공용 공간과 개인 공간을 명확히 분리한
효율적인 생활 동선이 이 모델의 가장 큰 특징입니다.
조용한 전원 생활을 원하시거나
실용적이면서도 감각적인 단층 주택을 찾고 계신 분들께
좋은 선택이 되어줄 수 있는 집입니다.
139,230,000원
4평 규모의 포치 공간이 핵심 포인트인 단층 주택을 소개해 드립니다.
단순하고 정갈한 외관과 더불어,
최소한의 공간을 실속 있게 활용할 수 있도록
공간의 성격을 명확히 나눠 설계한 구조가 특징입니다.
강화 초지리 모델은
25.47평 규모의 경량 목구조 단층 주택입니다.
방 2개, 욕실 2개, 거실과 주방,
그리고 다용도실과 파우더 룸, 포치 공간까지 갖춰
실용적인 구조로 설계되었습니다.
집의 중심에는 거실 공간과 주방이 하나의 공간에 배치되어 있고,
집의 왼쪽으로 포치와 다용도실이 연결된 외부 공용 휴식 공간을,
오른쪽으로는 침실 2개와 욕실, 파우더룸이 모여 있는 '개인 생활 공간'이 분리된 구조입니다.
거실을 중심으로 기능에 따라 좌우가 자연스럽게 나뉜 설계로,
생활 동선이 명확하고 공간 간섭 없도록 구성되었습니다.
강화 초지리 모델의 외관 모습을 보면,
25평대 단층 주택이지만
답답한 느낌 없이 "넓고 안정적인 인상"을 주는 것이 가장 큰 특징입니다.
디자인적으로는 수평과 수직 라인을 간결하게 정리했고,
외장재는 '세라믹 사이딩을 적용해',
모노톤 컬러 조합을 통해
심플하면서도 세련된 인상을 전달할 수 있도록 설계했습니다.
또한 지붕은 '리얼징크를 사용하여',
전체적인 형태와 조화를 이루면서도
고급스러운 마감 느낌을 줄 수 있도록 계획되었습니다.
강화 초지리 모델의 포치 공간은
약 4평 규모로 여유 있게 설계되었으며,
폴딩도어를 적용해 활용도를 더욱 높였습니다.
무엇보다 바닥에는 전기판넬을 시공하고 강화마루로 마감하여,
겨울철에도 바닥이 따뜻하고 맨발로도 편하게 사용할 수 있는 공간으로 계획되었습니다.
날씨가 좋은 날에는 폴딩도어를 열어
거실과 데크, 마당까지 자연스럽게 이어지는 개방형 외부 공간으로,
비나 눈이 오는 날에는 실내처럼 활용할 수 있는 쉼터로 사용할 수 있어
사계절 내내 실용적인 공간으로 설계되었습니다.
데크는 약 10평 규모의 석재 데크로 계획되었으며,
포치와 거실에서 자연스럽게 이어지고
마당과도 연결되는 외부 활동 공간의 중심부로 구성되었습니다.
습기와 마모에 강한 석재 데크는
내구성이 뛰어나고 오랜 시간 깔끔하게 사용할 수 있어,
실외 공간의 품질을 높여주는 마감재로 선택되었습니다.
강화 초지리 모델, 건축비는 얼마나 들까요?
많은 분들이 가장 궁금해하시는 부분이 바로 건축비일 텐데요.
강화 초지리 모델은 평당 500만 원 프로모션 기준으로
실속 있게 구성되어 있습니다.
기본적인 건축 면적은 약 25평(84.07㎡) 으로,
기본 공사비는 1평당 500만원 기준,
약 10,500만 원이 책정됩니다.
여기에 자재와 외장, 포치 등 다양한 업그레이드 항목이 추가되는데요,
각 항목 별 예상 비용은 아래와 같습니다:
⸻⸻⸻⸻⸻⸻⸻⸻⸻⸻⸻⸻⸻⸻
✅ 선택 업그레이드 항목
• 지붕재 업그레이드
아스팔트슁글에서 리얼징크로 업그레이드
→ 평당 20만 원 × 25평 = 500만 원
• 외장재 업그레이드
메탈사이딩에서 세라믹사이딩으로 업그레이드
→ 평당 35만원 × 21평 = 735만 원
• 포치 (4평 기준)
포치 시공 : 평당 150만 원 × 4평 = 600만 원
전기판넬 + 강화마루 : 평당 25만 원 × 4평 = 100만 원
• 데크 (10평 기준)
석재 데크 시공 : 평당 90만 원 × 10평 = 900만 원
• 폴딩도어 (14짝 기준)
일반 폴딩도어 시공 : 짝당 42만 원 × 14짝 = 588만 원
⸻⸻⸻⸻⸻⸻⸻⸻⸻⸻⸻⸻⸻⸻
✅ 총 예상 건축비
139,230,000원 (VAT 별도)
25평대 단층 주택임에도 불구하고
넓고 개방감 있는 외관 설계와
포치와 데크를 중심으로 연결된 실속 있는 외부 공간,
그리고 공용 공간과 개인 공간을 명확히 분리한
효율적인 생활 동선이 이 모델의 가장 큰 특징입니다.
조용한 전원 생활을 원하시거나
실용적이면서도 감각적인 단층 주택을 찾고 계신 분들께
좋은 선택이 되어줄 수 있는 집입니다.