185,430,000원


도심 한가운데에서 단독주택의 여유를 누릴 수 있도록
지교가 기획모델, ‘시흥 대야’ 모델을 소개합니다.
이 모델은 도심 한가운데서도 프라이버시를 지키며
전원주택의 삶을 누릴 수 있도록 설계된 모델입니다.


📌 이렇게 설계되었습니다!
고층 아파트에 둘러싸인 시흥 대야동 부지를 기준으로,
단독 마당과 독립된 생활공간을 구성하여
아파트와는 다른 여유로운 삶을 그릴 수 있도록 설계했습니다.
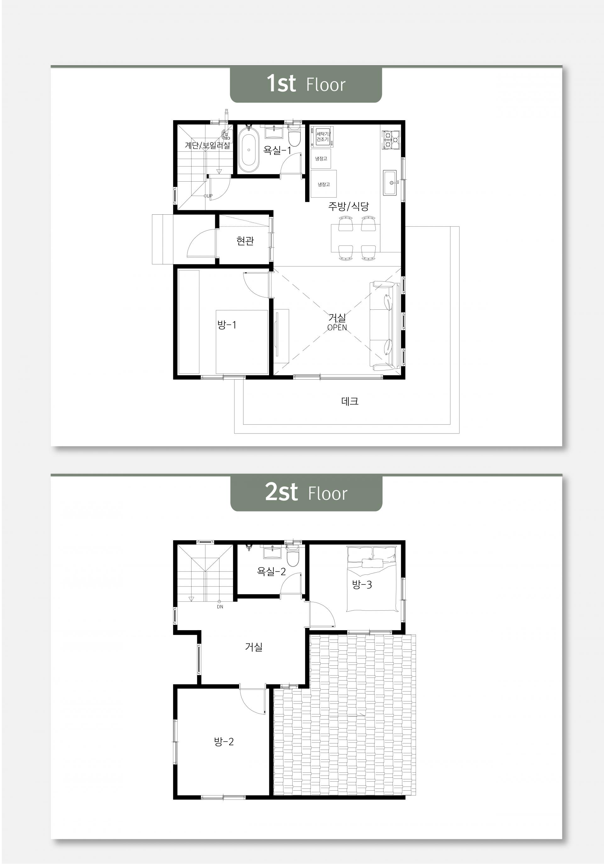
시흥 대야 모델은
경량 목구조, 총 31평 규모의 2층 주택이며
실용성과 개방감 모두를 잡은 설계가 특징입니다.
🏠 층별 공간 구성
1층은 거실, 주방, 안방, 욕실, 다용도실이 배치되었고
거실은 오픈천장 구조로 설계되어
단층 이상의 개방감을 제공합니다.
2층은 자녀방 또는 손님방으로 활용할 수 있는 방 2개,
그리고 가족이 잠시 머무르거나
책을 읽는 용도로 사용할 수 있는 오픈 공간이 마련되어 있습니다.
또한 설계 단계에서부터 창호 수량을 늘려
채광과 환기, 개방감까지 고려한 공간 구성이 적용됐습니다.

🪟 외관 & 마감 구성
외장은 세라믹 사이딩으로 마감되었으며,
입체감 있는 특수 패턴 포인트를 적용해
고급스러운 첫인상을 완성했습니다.
현관 정면에는 하이클래딩 마감재를 활용해
우드톤의 따뜻한 질감을 더했으며,
창과 창 사이에도 수직 포인트 마감을 더해
외관 전체의 리듬감과 세련미를 살렸습니다.
지붕은 아스팔트 슁글로 계획되어
전체 톤과 안정적으로 어우러지도록 설계되었습니다.
🪵 외부 공간도 실속 있게
전면 데크는 현무암 석재로 마감하였고,
기단부도 동일한 소재로 통일해
내구성과 디자인 모두를 고려했습니다.


시흥 대야 모델의 건축비를 하나씩 살펴보겠습니다.
먼저,
기본 평수는 31평,
기본 건축비는 1억 5천 5백만 원입니다.
여기에 자재와 외장 등 다양한 업그레이드 항목이 추가되는데요,
각 항목 별 예상 비용은 아래와 같습니다.
⸻⸻⸻⸻⸻⸻⸻⸻⸻⸻⸻⸻⸻⸻
✅ 선택 업그레이드 항목
• 외장재 업그레이드
메탈사이딩 → 세라믹사이딩 + 하이클래딩 포인트
→ 평당 45만 원 × 30평 = 1,350만 원
• 오픈천장
개방감 있는 거실 공간 연출
→ 평당 100만 원 × 5평 = 500만 원
• 데크 마감
고급스러운 현무암 석재데크
→ 평당 90만 원 × 8평 = 720만 원
• 기단부 석재
외관 마감 통일감을 위한 현무암 석재 기단부 시공
→ ㎡당 13만 원 × 11평 = 143만 원
• 시스템창호 추가
천장 높이 기본 2.4m에서 2.7m로 인상
평당 20만 원 × 27평 = 540만 원
• 포치
현관 앞 공간을 실용적으로!
→ 포치 1평 × 평당 150만 원 = 150만 원
✅ 총 예상 건축비
18,043,000원 원 (VAT 별도)

시흥 대야 모델은
도심 속에서도 여유로운 단독주택을 실속 있게 누릴 수 있도록
구성된 기획형 주택입니다.
실속과 품질 그 모든 기준에 부합하는집
시흥대야 모델이 분명 좋은 선택이 되어줄 것 입니다.
185,430,000원
도심 한가운데에서 단독주택의 여유를 누릴 수 있도록
지교가 기획모델, ‘시흥 대야’ 모델을 소개합니다.
이 모델은 도심 한가운데서도 프라이버시를 지키며
전원주택의 삶을 누릴 수 있도록 설계된 모델입니다.
📌 이렇게 설계되었습니다!
고층 아파트에 둘러싸인 시흥 대야동 부지를 기준으로,
단독 마당과 독립된 생활공간을 구성하여
아파트와는 다른 여유로운 삶을 그릴 수 있도록 설계했습니다.
시흥 대야 모델은
경량 목구조, 총 31평 규모의 2층 주택이며
실용성과 개방감 모두를 잡은 설계가 특징입니다.
🏠 층별 공간 구성
1층은 거실, 주방, 안방, 욕실, 다용도실이 배치되었고
거실은 오픈천장 구조로 설계되어
단층 이상의 개방감을 제공합니다.
2층은 자녀방 또는 손님방으로 활용할 수 있는 방 2개,
그리고 가족이 잠시 머무르거나
책을 읽는 용도로 사용할 수 있는 오픈 공간이 마련되어 있습니다.
또한 설계 단계에서부터 창호 수량을 늘려
채광과 환기, 개방감까지 고려한 공간 구성이 적용됐습니다.
🪟 외관 & 마감 구성
외장은 세라믹 사이딩으로 마감되었으며,
입체감 있는 특수 패턴 포인트를 적용해
고급스러운 첫인상을 완성했습니다.
현관 정면에는 하이클래딩 마감재를 활용해
우드톤의 따뜻한 질감을 더했으며,
창과 창 사이에도 수직 포인트 마감을 더해
외관 전체의 리듬감과 세련미를 살렸습니다.
지붕은 아스팔트 슁글로 계획되어
전체 톤과 안정적으로 어우러지도록 설계되었습니다.
🪵 외부 공간도 실속 있게
전면 데크는 현무암 석재로 마감하였고,
기단부도 동일한 소재로 통일해
내구성과 디자인 모두를 고려했습니다.
시흥 대야 모델의 건축비를 하나씩 살펴보겠습니다.
먼저,
기본 평수는 31평,
기본 건축비는 1억 5천 5백만 원입니다.
여기에 자재와 외장 등 다양한 업그레이드 항목이 추가되는데요,
각 항목 별 예상 비용은 아래와 같습니다.
⸻⸻⸻⸻⸻⸻⸻⸻⸻⸻⸻⸻⸻⸻
✅ 선택 업그레이드 항목
• 외장재 업그레이드
메탈사이딩 → 세라믹사이딩 + 하이클래딩 포인트
→ 평당 45만 원 × 30평 = 1,350만 원
• 오픈천장
개방감 있는 거실 공간 연출
→ 평당 100만 원 × 5평 = 500만 원
• 데크 마감
고급스러운 현무암 석재데크
→ 평당 90만 원 × 8평 = 720만 원
• 기단부 석재
외관 마감 통일감을 위한 현무암 석재 기단부 시공
→ ㎡당 13만 원 × 11평 = 143만 원
• 시스템창호 추가
천장 높이 기본 2.4m에서 2.7m로 인상
평당 20만 원 × 27평 = 540만 원
• 포치
현관 앞 공간을 실용적으로!
→ 포치 1평 × 평당 150만 원 = 150만 원
✅ 총 예상 건축비
18,043,000원 원 (VAT 별도)
시흥 대야 모델은
도심 속에서도 여유로운 단독주택을 실속 있게 누릴 수 있도록
구성된 기획형 주택입니다.
실속과 품질 그 모든 기준에 부합하는집
시흥대야 모델이 분명 좋은 선택이 되어줄 것 입니다.